콘텐츠로 건너뛰기
NOCNOC Architects
Menu
About
Project
Architecture
Interior
Contact
경기 용인 단독주택
설계 당시 3D 이미지
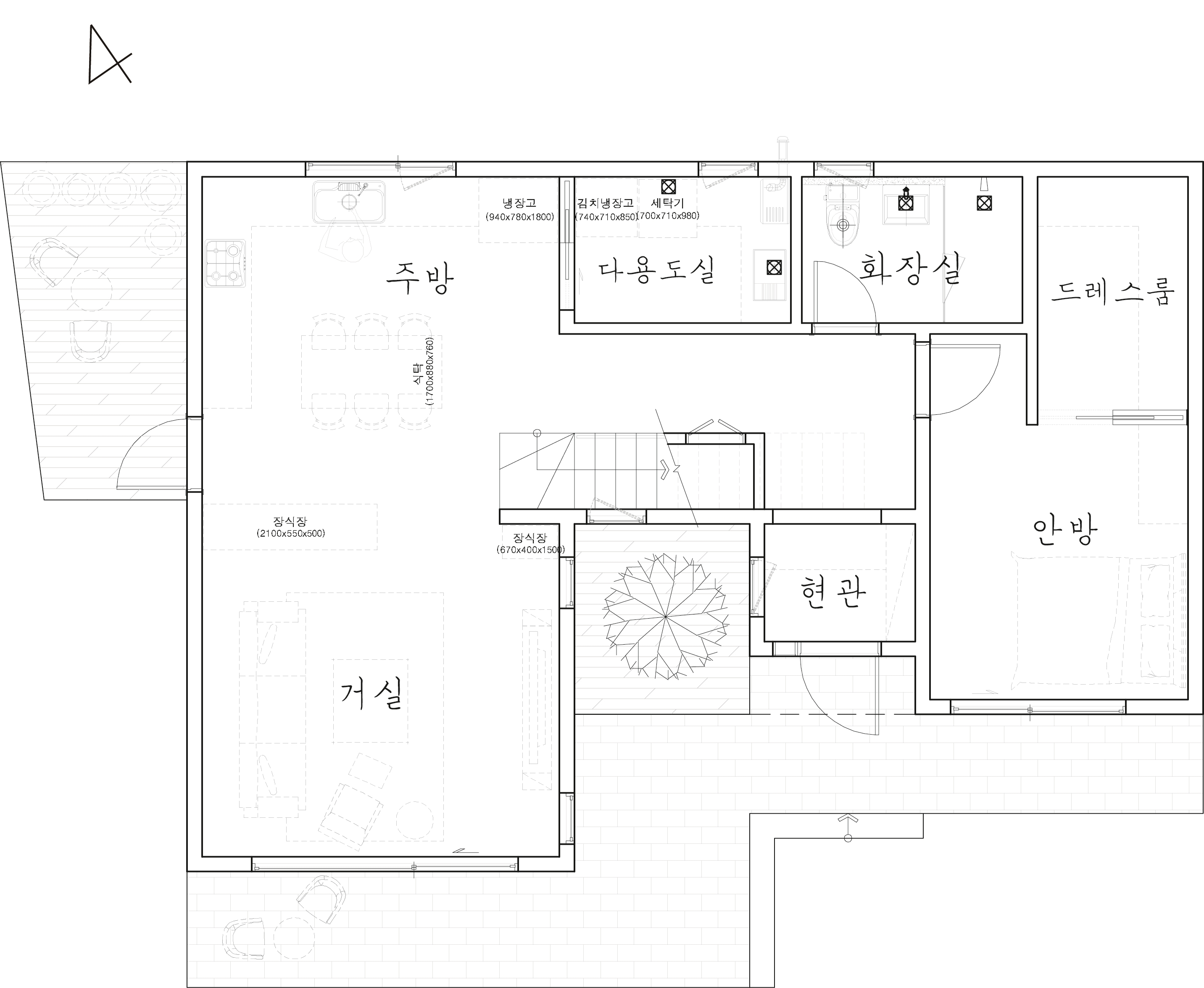
1층 평면도
2층 평면도
2가지 안으로 설계
청고벽돌 외장재
error:
Content is protected !!